公司动态最新文章
相关文章
活动隔断工程解决方案
联系我们
金利仕活动隔断
全国统一咨询热线:
13533177889- 电话:0757-85625003
- 电子邮箱:jinlishi@139.com
- 地址:广东省佛山市南海区里水镇河村石荣工业区二横路2号
- 更多
陕建集团办公楼东楼会议厅活动屏风完工
发布时间:2016-01-12 11:46:39
工程名称:陕建集团办公楼东楼会议厅活动屏风工程
洽谈时间:2015.11.10
签署工程合同时间:2015.11.17
安装轨道时间:2015.11.23
屏风数量:160平方米
屏风用途:会议厅分隔
地点:西安市北大街199号
完成时间:2015.12.18

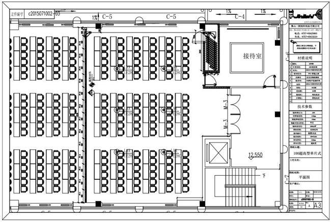
陕建集团办公楼东楼会议厅活动屏风工程平面图

陕建集团办公楼东楼会议厅活动屏风工程立面图
陕西建工集团成立于1950年,是陕西省首批获得房建施工总承包特级资质、建筑行业甲级设计资质及海外经营权的省属大型国有综合企业集团,具有工程投资、勘察、设计、施工、管理为一体的总承包能力,并拥有城市轨道交通、钢构制作安装、商混生产配送、工程装饰装修、古建园林绿化、锅炉研发生产、物流配送供应、地产开发建设、医疗卫生教育、旅游饭店经营等产业。

此次陕建集团对其总公司的办公楼东楼进行改造工程,要在东楼设置大型会议厅,所以需求到活动屏风分隔会议空间。相信对于以建筑装修专长的陕建集团来说,选择合作商也是严谨的,必须拥有过硬的技术、优质的产品质量才能进入候选名单,而作为拥有生产制品多年经验的活动屏风并且开创屏风行业十大优势的金利仕受到了建筑工程公司陕建的青睐。

金利仕负责设计、生产的陕建集团办公楼东楼会议厅活动屏风采用的是超高型钢轨,100型的活动屏风,饰面为软包盖框。从现场效果图来看,客户非常满意。客户表示希望有更多与金利仕隔断合作的机会。
喜欢这篇文章吗?那就点击按扭分享她吧!
下一篇:移动隔断:让空间“活”起来的神器

13533177889

















